1简介
滤筒式除尘器早在20世纪70年代就已经在日本和欧美一些国家出现,具有体积小,效率高,投资省,易维护等优点,但因其设备容量小,难组合成大风量设备,过滤风速偏低,应用范围窄,仅在粮食、焊接等行业应用,所以多年来未能大量推广。近年来,随着新技术、新材料不断地发展,以日本,美国的公司为代表,对除尘器的结构和滤料进行了改进,使得滤筒除尘器广泛地应用于水泥、钢铁、电力、食品、冶金、化工等工业领域,整体容量增加数倍,成为过滤面积>2000m2大型除尘器(GB6719-86类),是解决传统除尘器对超细粉尘收集难、过滤风速高、清灰效果差、滤袋易磨损破漏、运行成本高的佳方案,和市场上现有各种袋式、静电除尘器相比具有有效过滤面积大、压差低、低排放、体积小、使用寿命长等特点,成为工业除尘器发展的新方向。
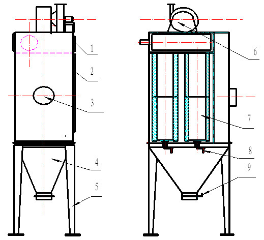
2滤筒式除尘器的结构
滤筒式除尘器的结构是由进风管、排风管、箱体、灰斗、清灰装置、导流装置、气流分流分布板、滤筒及电控装置组成,类似气箱脉冲袋除尘结构。
滤筒在除尘器中的布置很重要,既可以垂直布置在箱体花板上,也可以倾斜布置 在花板上,从清灰效果看,垂直布置较为合理。花板下部为过滤室,上部为气箱脉冲室。在除尘器入口处装有气流分布板。

3筒式除尘器工作原理

含尘气体进入除尘器灰斗后,由于气流断面突然扩大及气流分布板作用,气流中一部分粗大颗粒在动和惯性力作用下沉降在灰斗;粒度细、密度小的尘粒进入滤尘室后,通过布朗扩散和筛滤等组合效应,使粉尘沉积在滤料表面上,净化后的气体进入净气室由排气管经风机排出。
滤筒式除尘器的阻力随滤料表面粉尘层厚度的增加而增大。阻力达到某一规定值时进行清灰。此时PLC程序控制脉冲阀的启闭,首先一分室提升阀关闭,将过滤气流截断,然后电磁脉冲阀开启,压缩空气以及短的时间在上箱体内迅速膨胀,涌入滤筒,使滤筒膨胀变形产生振动,并在逆向气流冲刷的作用下,附着在滤袋外表面上的粉尘被剥离落入灰斗中。清灰完毕后,电磁脉冲阀关闭,提升阀打开,该室又恢复过滤状态。清灰各室依次进行,从比较好室清灰开始至下一次清灰开始为一个清灰周期。脱落的粉尘掉入灰斗内通过缷灰阀排出。
在此过程中必须定期对滤筒进行更换和清洗,以确保过滤效果和精度,因为在过滤过程中粉尘除了被阻隔外还有部分会沉积于滤料表面,增大阻力,所以一般的正确更换时间是三至五个月!
4技术改进措施和选用技术
4.1清灰装置
传统的滤筒除尘器有两种清灰方式,一种是高压气流反吹,一种是脉冲气流喷吹,实践表明前者的优点是气流均匀,缺点是耗气量大;后者的优点是耗气量小,缺点是气流弱小。为此可作两个方面改进:一方面在脉冲喷吹管上增加导流装置,加强气流诱导作用,另一方面把滤筒上部导流风管取消,使脉冲气流和诱导气流同时充分进入滤筒。这样改进后耗气量少,气流均匀,清灰效果好,根据计算,技术改进后的清灰气流流量是脉冲气量的3-5倍。
4.2 气量分布板
滤筒除尘器的气流分布很重要,必须考虑如何避免设备进口处由于风速较高造成对滤料的高磨损区域。气流分布板用于滤筒式除尘器有独特要求,气流分布必须十分稳定和均匀。才有利于气流的上升和粉尘的下降,气流分布板开孔率35%。根据计算,阻力系数
②滤筒高度小,安装方便,使用维修工作量小;
5除尘过程
1、捕集分离过程
①捕集推移阶段。实质是粉尘的浓缩阶段。均匀混合或悬浮在运载介质中的粉尘,进入除尘器的除尘空间。由于受外力的作用,将粉尘推移到分离界面,随粉尘向分离界面推移,浓度越来越大,为固—气分离进一步作好准备。
② 分离阶段。当高浓度的尘流流向分离界面以后,存在两种作用机理:其一,运载介质运载粉尘的能力逐渐达到极限状态,在粉尘悬浮和沉降趋势上,以沉降为主,并通过粉尘沉降,使之从运载介质中分离出来;其二,在高浓度尘流中,粉尘颗粒的扩散与凝聚趋势,以凝聚为主,颗粒之间可以彼此凝聚,也可在实质界面上凝聚并吸附。
2、排尘过程
经过分离界面以后,己分离的粉尘通过排尘口排出的过程。
3、排气过程
已除尘后相对净化的气流从排气口排出的过程
6滤筒除尘器的标准
2002年中华人民共和国机械行业标准:滤筒式除尘器标准 JB/T10341-2002
除尘器图片:

6滤筒除尘器的特点
滤筒除尘器的特点如下:
①由于滤料折褶成筒状使用,使滤料布置密度大,所以除尘器结构紧凑,体积小;
滤筒式除尘器图片:

③同体积除尘器过滤面积相对较大,过滤风速较小,阻力不大;
④滤料折褶要求两端密封严格,不能有漏气,否则会降低效果。
脉冲滤筒除尘器的特单如下:
1、滤筒采用进口聚酯纤维作为滤料,把一层亚微米级的超薄纤维粘附在一般滤料上,并且在该粘附层上纤维间的排列非常紧密,极小的筛孔可把大部分亚微米级的尘粒阻挡在滤料表面;
2、滤料折褶使用,可增大过滤面积,并使除尘器结构更为紧凑;
3、 滤筒高度小,安装维修工作量小;
4、与同体积除尘器相比,过滤面积相对较大,过滤风速较小,阻力不大;
5、 单机除尘器清灰采用脉冲喷吹在线清灰方式。清灰过程由脉冲控制仪自动控制。除尘器内设置多个滤筒以增加其有效过滤面积,当某个(对)滤筒满足清灰设定要求时,即启动喷吹装置进行清灰,其他滤筒正常工作,这样既达到了清灰效果又不影响设备运行,使除尘器可连续运转;组合式除尘器清灰采用分室离线脉冲自动循环清灰。每个除尘室内设置多个滤筒以增加其有效过滤面积,当某个除尘室内滤筒满足清灰设定要求时,即启动喷吹装置进行清灰,其他除尘室正常工作,这样既保障了清灰效果又可使除尘器可连续运转;
6、 除尘效率高(一般可达99.6%以上),操作方便;
7主要性能指标
脉冲气流没有经过文丘里就直接喷吹进入滤筒内部。将会导致滤筒靠近脉冲阀的一端(上部)承受负压,而滤筒的另一端(下部)将承受压力如图6-29所示。这就会造成滤筒的上下部清灰不同而可能缩短使用寿命,并使设备不能达到有效清灰。
为此可在脉冲阀出口或者脉冲喷吹管上安装滤筒用文丘里喷嘴。把喷吹压力的分布情况改良成比较均匀的全滤筒高度正压喷吹。
灰尘堆积在滤筒的折叠缝中将使清灰比较困难。所以折叠面积大的滤筒(每个滤筒的过滤面积达20~22m2)一般只适合应用于较低入口浓度的情况。比较常用滤筒尺寸与过滤面积。
滤筒除尘器脉冲喷吹装置的分气箱应符合JB/T 10191-2000的规定。洁净气流应无水、无油、无尘。脉冲阀在规定条件下,喷吹阀及接口应无漏气现象,并能正常启闭,工作可靠。
脉冲控制仪工作应准确可靠,其喷吹时间与间隔均可在一定范围内调整。诱导喷吹装置与喷吹管配合安装时。诱导喷吹装置的喷口应与喷吹管上的喷孔同轴,并保持与喷管一致的垂直度,其偏差小于2mm。
8滤筒除尘器滤筒及滤料
滤筒图片

滤筒式除尘器的过滤元件是滤筒。滤筒的构造分为顶盖、金属框架、褶形滤料和底座等四部分。由这四部分组成的滤筒有圆形、扁形和锥形等。
滤筒是用设计长度的滤料折叠成褶,首尾黏合成筒,筒的内外用金属框架支撑,上、下用顶盖和底座固定。顶盖有固定螺栓及垫圈。圆形滤筒,扁形滤筒的外形。
滤筒的上下端盖、护网的粘接应可靠,不应有脱胶、漏胶和流挂等缺陷;滤筒上的金属件应满足防锈要求;滤筒外表面应无明显伤痕、磕碰、拉毛和毛刺等缺陷;滤筒的喷吹清灰按需要可配用诱导喷嘴或文氏管等喷吹装置,滤筒内侧应加防护网,当选用D≥320mm,H≥1200mm滤筒时,宜配用诱导喷嘴。
常用滤筒分为三大类。表为不同空气滤筒的不同保护对象和安装部位
|
类别
|
名称区别
|
保护对象
|
具体应用场合及安装位
|
|
Ⅰ
|
保护机器类的空气滤筒
|
内燃机、空气压缩机、汽轮机及其他类发动机的进气系统机件保护
|
汽车、各种战车、各类船舰、铁路机车、飞机、运载火箭等发动机的进气口或进气道
|
|
Ⅱ
|
创建洁净房间的空气滤筒
|
洁净室无尘,保证生产产品质量,烟雾厂房净化后保证人体健康
|
药品、食品、电子产品的生产车问净化;博物馆、图书馆等馆藏间净化,手术室、健身房、生产厂房烟尘排放;行走器、飞行器、驾驶舱净化。安装在进气口或进气道。
|
|
Ⅲ
|
保护大气用除尘器滤筒
|
控制烟尘粉尘排放,保护地球切生灵健康长寿
|
水泥厂、电厂、钢厂等烟粉尘控制排放;垃圾焚烧、炼焦炼铁、锻铸厂房及汽车等烟尘排放口
|
滤筒成品体积与过滤器总成体积关系很大。使用过滤器总成的主机,往往对过滤器提出以下要求:①除尘器总高和进出口距离(宽);②滤筒下体总高和直径;③滤筒总质量;④出气口连接方式及尺寸;⑤过滤精度等一系列与过滤特性相关的性能要求。
滤筒设计根据总成要求要注意以下要素。
(l)滤筒外径尺寸 大于滤筒内径10mm以上为宜。这是因为高而窄小的空间,可以让污染颗粒在滤筒外层缓慢沉降,这样使滤筒从上而下地均匀接受污染堵塞。
(2)内骨架直径尺寸的确定 主要考虑通油小孔的大小不应影响过滤气量,同时要照顾小孔尺寸对骨架强度的影响。
(3)内骨架总强度极为重要 首先要考虑滤筒承受的压差要以骨架支撑,所以直径越小强度越高。
(4)褶皱纹牙高度 应选在l0~50mm之间为佳。
(5)充分留有压差极限余地 当计算出所需过滤而积后,应将此面积增大1倍。这是因为要充分考虑实际工作中,粉尘污染物是不可预测的。
滤料图片

滤筒用滤料有两类:一类是合成纤维滤料,一类是纸质滤料。
合成纤维非织造滤料。按加工工艺可分为连续纤维纺粘聚酯热压及短纤维纺粘聚酯热压两类。滤料表面防水处理工况时,防水处理后的滤料其浸润角应大于90°,沾水等级不低于Ⅳ级。滤料防油处理工况时,滤料做防油处理。聚酯非织造滤料可承受工作温度不低于120℃。对高温高湿等其他特殊工况,滤筒材质结构的选用应满足应用要求。
纸质滤料可分为低透气度和高透气度两类。
另外还有合成纤维非织造聚四氟乙烯覆膜滤料和纸质聚四氟乙烯覆膜滤料。
