气箱式脉冲袋式除尘器主要特点是在滤袋上口不设文氏管,也没有喷吹管,是用脉冲阀 直接向净气室喷吹压缩空气,对滤袋进行淸灰。适用于高浓度粉尘处理,可不设旋风除尘器 直接使用。
气箱式脉冲袋式除尘器本体分隔成若干个箱区,每箱有32、64、96、128条滤袋。并在 每箱侧边出口管道上有一个气缸带动的提升阀,其作用是接收清灰控制器发出的信号,逐个 对箱体完成淸灰动作。其结构如图6-54所示。
气箱式脉冲袋式除尘器的滤袋材质,在常温时一般采用涤纶针刺毡,在高温下选用美塔 斯、Pm或氟美斯针刺毡。淸灰控制可选用定时控制,也可选用定差压控制。
①LCPMGS型气箱式脉冲袋式除尘器 LCPMGS型气箱式脉冲袋式除尘器规格有32 袋和64袋两种。LCPMGS-32型气箱式脉冲袋式除尘器技术性能见表6-56,外形尺寸见图 6-55。LCPMGS-64型气箱式脉冲袋式除尘器技术性能见表6-57,外形尺寸见图6-56。
②PPDC型气箱式脉冲袋式除尘器PPDC型气箱式脉冲袋式除尘器型号有PPDC96型 和PPDC128型,每种型号有单列和双列两种规格。
PPDC96型单列气箱式脉冲袋式除尘器主要性能见表6-58,主要尺寸见图6-57和表6-59。




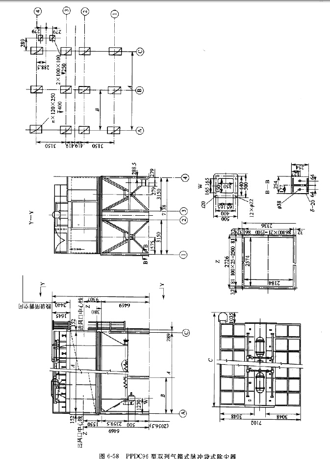
PPDC96型双列气箱式脉冲袋式除尘器主要性能见表6-60,主要尺寸见图6-58和表6-61。 PPDC128型单列气箱式脉冲袋式除尘器主要性能见表6-62,主要尺寸见图6-59和表6-63。 PPDC128型双列气箱式脉冲袋式除尘器主要性能见表6-64,主要尺寸见图6-60和表6-65。







电话:18903178757
传真:0317-8041117
邮箱:28505225@qq.com
地址:河北省泊头市富镇开发区
冀ICP备16028451号-3
-
-